№ 62063
Аренда
Калужское шоссе, Марьино, КП Есенино, 18 км от МКАД
450 000 ₽ / мес.
Дом
250 м2
Спален
4
Отделка
Под ключ
Участок
12 сот
Дом
250 м2
Участок
12 сот
Спален
4
Отделка
Под ключ
Характеристики дома
- Уровней 3
- Кровля мягкая
- Материал стен кирпич, фасад - искусственный камень и штукатурка
- Встроенная техника: духовой шкаф, СВЧ, варочная электрическая панель, посудомоечная машина "Weissgauff "
- Срок аренды (мес.) от года
- Предоплата (кол. мес.) 2 мес.
- Размер депозита 450.000
Современная качественная отделка , высокие потолки, разноуровневое освещение. Большой дровяной камин. На кухне установлен стильный кухонный гарнитур.
Большой стол со столешницей из красивого искусственного камня.
Мебель в стиле ар-деко, полностью укомплектован. В спальнях - двуспальные кровати, полностью оборудованные гардеробные.
Шторы, тюль, люстры и другие осветительные приборы, предметы декора и текстиль.
Стальные панельные радиаторы.
участок
Участок с ландшафтным дизайном, высажены туи, оборудован искусственный пруд (обложен камнями).
На участке разведено уличное освещение.
дополнительные Постройки
Хозяйственная постройка для садового инвентаря.
Теплицы.
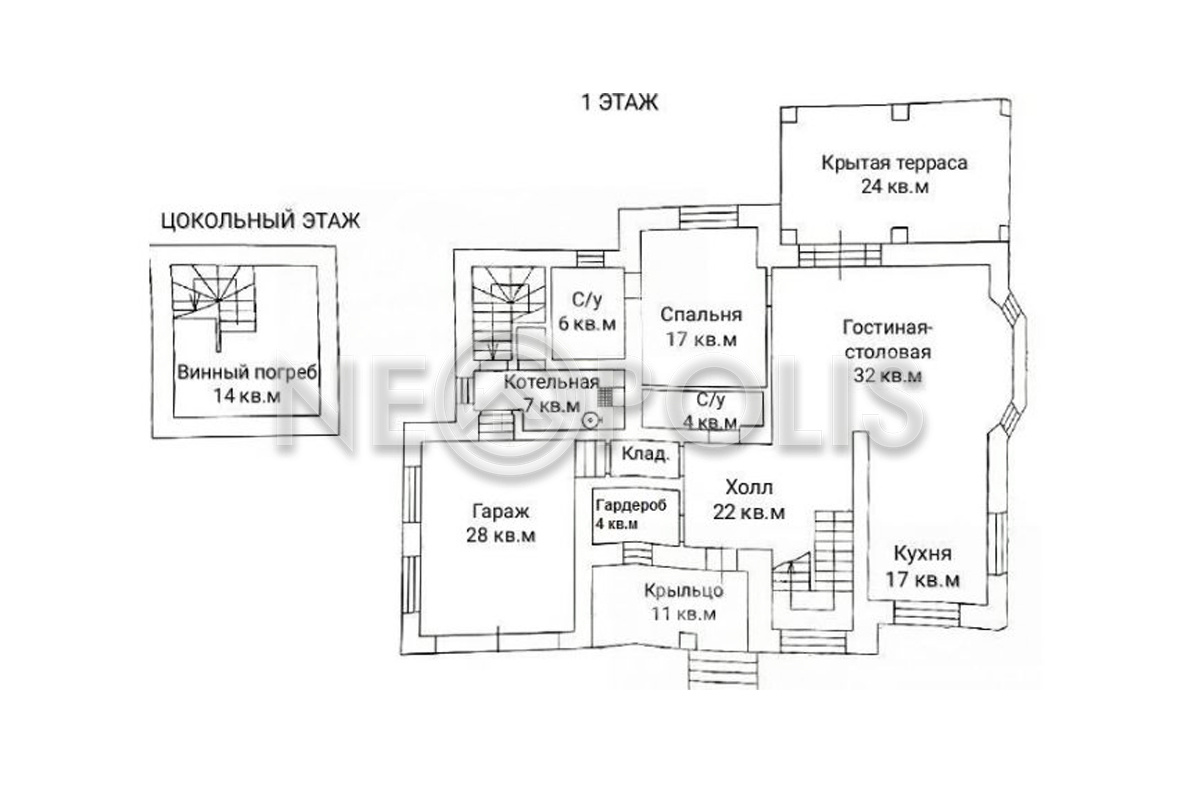
ПЛАНИРОВКА
- Цоколь:холл, винный погреб, холодная кладовая.
- 1 этаж:крыльцо с гардеробной, холл, кухня-столовая, гостиная с дровяным камином, вторым светом и выходом на крытую террасу (24 кв.м.) с зоной барбекю, спальня с ванной комнатой, санузел, кладовая, котельная с входом из гаража, гараж (28 кв.м.).
- 2 этаж:холл со вторым светом, мастер-спальня с гардеробной и ванной комнатой, две спальни, санузел.
КОММУНИКАЦИИ
Газ
магистральный, установлен газовый котел ACV Альфа (Бельгия)
Электричество
20 кВт
Вода
центральная, установлен бойлер ACV на 200л. (Бельгия), многоступенчатая система очистки воды
Канализация
центральная
инфраструктура
Коттеджный поселок «Есенино» - один из самых привлекательных вариантов загородной недвижимости на территории Новой Москвы.
Поселок с двух сторон окружен смешанным лесом.
Рядом с поселком протекает живописная река Незнайка.
Для постоянного круглогодичного проживания в поселке присутствую все необходимые условия.
Поселок с двух сторон окружен смешанным лесом.
Рядом с поселком протекает живописная река Незнайка.
Для постоянного круглогодичного проживания в поселке присутствую все необходимые условия.
Посёлок расположен в лесной зоне и огражден по периметру, есть КПП.
В шаговой доступности находится магазин, детская площадка, место для отдыха, медицинский пункт, прогулочные зоны.
Работает служба эксплуатации.
В шаговой доступности находится магазин, детская площадка, место для отдыха, медицинский пункт, прогулочные зоны.
Работает служба эксплуатации.
EXCLUSIVE
подмосковные вечера
Калужское шоссе, 22 км от МКАД



Объект расположен в комфортном для проживания поселке, на благоустроенном участке с видом на лес и ландшафтным дизайном. Полностью готов к круглогодичному проживанию. Отделка выполнена в классическом стиле из дорогих натуральных материалов.