№ 8331
Загородные дома
Киевское/Калужское шоссе, Пушкино, КП Монплезир-Пушкино, 12 км от МКАД
Валюта
Валюта:
38 000 000 ₽
Дом
272 м2
Спален
5
Отделка
Без отделки
Участок
8 сот
Дом
272 м2
Участок
8 сот
Спален
5
Отделка
Без отделки
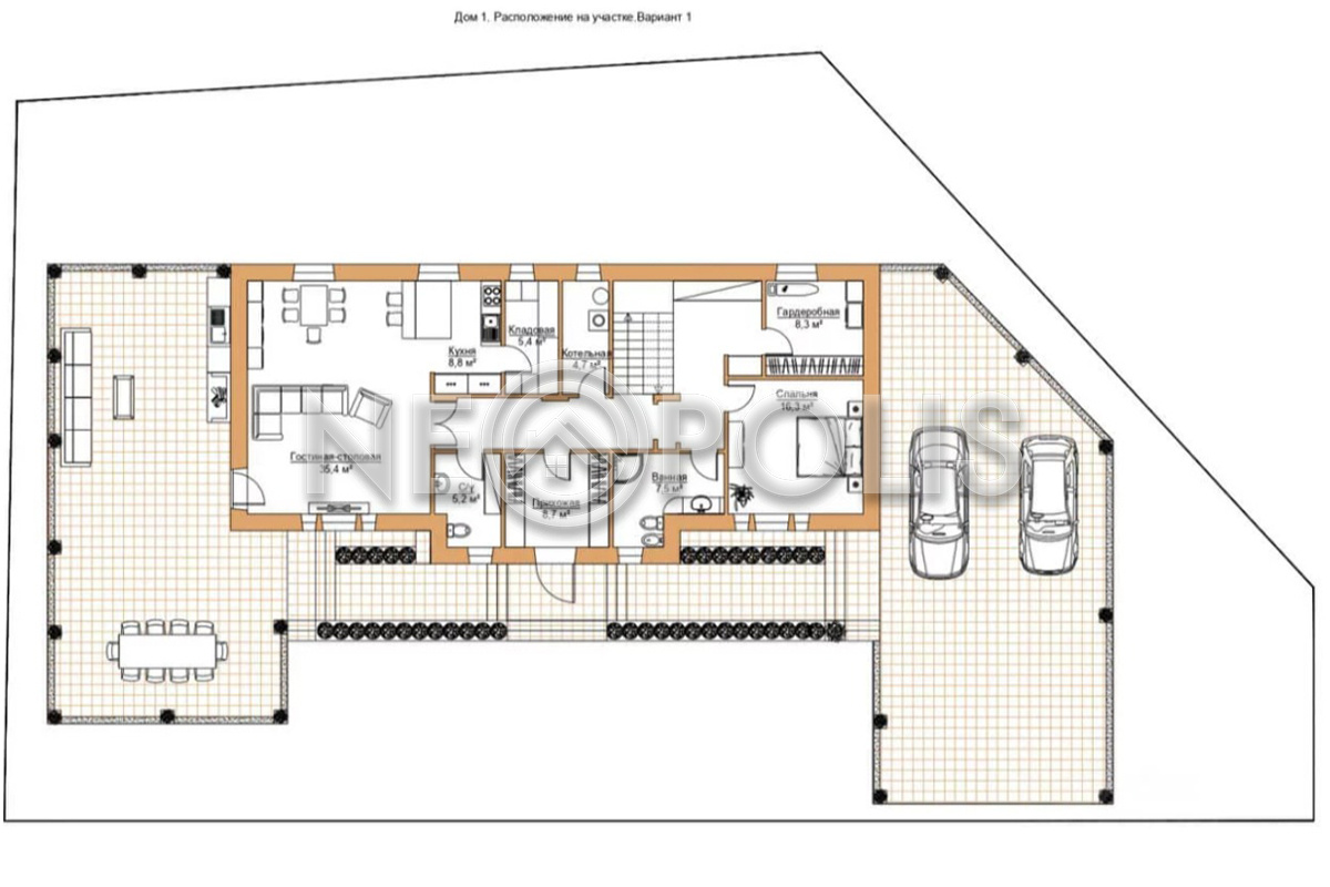
Характеристики дома
- Уровней 2
- Кровля мягкая кровля Docke Цюрих Фладен. Количество и конфигурация окон в кровле согласовывается дополнительно при рабочем проектировании
- Фундамент монолитная плита
- Материал стен бетонные блоки
- Перекрытия монолитные
- Год постройки: 2021
- Окна: Dekening с поворотно-откидным механизмом SIEGENIA TITAN AF и двухкамерным мультифункциональным стеклопакетом
- Высота потолков: 3,2 м
участок
На участке засеян газон.
По периметру участка выполнен дренаж.
Организована парковка на 2 авто.
дополнительные Постройки
На участке залита отмостка, фундамент под террасу и зону барбекю.
ПЛАНИРОВКА
- 1 этаж:прихожая, холл, кухня-столовая с кладовой, гостиная с выходом на террасу, мастер спальня с ванной комнатой и гардеробной, кабинет, санузел, постирочная, котельная.
- 2 этаж:холл, 3 спальни, 2 санузла.
КОММУНИКАЦИИ
Газ
магистральный
Электричество
15 кВт
Вода
центральное
Канализация
центральная
EXCLUSIVE
подмосковные вечера
Калужское шоссе, 22 км от МКАД



Объект расположен в комфортном для проживания поселке, на благоустроенном участке с видом на лес и ландшафтным дизайном. Полностью готов к круглогодичному проживанию. Отделка выполнена в классическом стиле из дорогих натуральных материалов.